ホテル内 賃貸オフィス&テナントスペースSOHO豊橋
賃貸オフィス概要

A タイプ

50,4m2(15.24坪)
約7,2m×7m
貸料:月額 ¥127,600
共益費:月額 ¥17,600
敷金: ¥696,000
B タイプ

25,2m2(7.62坪)
約7,2m×3,5m
貸料:月額 ¥63,800
共益費:月額 ¥8,800
敷金: ¥348,000
C タイプ

20,13m2(6.14坪)
約5,8m×3,5m
貸料:月額 ¥50,600
共益費:月額 ¥8,800
敷金: ¥276,000
施設内設備
- 利用時間 8:00 ~ 22:00(原則)
- 内装仕様 床:タイルカーペット・ 壁・天井ビニールクロス
- 電気設備 各部屋の電気容量は20A 各部屋個別電力メーター設置
- 照明設備 蛍光灯照明器具設置
- 空調設備 冷暖房完備
- インターネット接続設備 光ファイバー通信環境設備(要:配線引込工事が必要)
- 衛生設備 各フロアに共用男女トイレを設置
- エレベーター設備 乗用エレベーター2基
- 駐車場 来客用として有り。通勤車輛は敷地内駐車できません。
外部駐車場は別途賃借月額¥8,800 - その他 各フロアに共用商談スペース
- リフレッシュルームを設置
有料設備
- 電気料金 各部屋個別電力メーターによる料金
共用の照明設備、及び空調設備、衛生設備に係る使用料金 (共益費) - 電話回線 各部屋直通の電話回線は入居者の費用負担
入居契約期間
- 賃貸借契約開始日より1年間(定期建物賃貸借契約)途中解約不可。
※1年後、契約満了時に再契約
お問い合わせ
TEL:0532-47-6119 (10時~17時)
玄関横 テナントスペース 概要
テナントスペース1

170.91㎡(51.7坪)
約14m×11.3m
貸料: 月額 ¥400,000(税別)
施設内設備
- 内装仕様 床:ピータイル 壁:クロス
- 電気設備 電灯100A 動力150A 電力メーター設置
- 照明設備 蛍光灯照明器具設置
- 空調設備 冷暖房完備
- 給排水工事 応相談
- 電気ガス追加工事 応相談
有料設備
- 電気料金 各部屋個別電力メーターによる料金
- 共用の照明設備、及び空調設備、衛生設備に係る使用料金 (共益費)
- 電話回線 ・ インターネットは入居者の費用負担(要:配線引き込み工事が必要)
入居契約期間
- 賃貸借契約開始日より3年間(定期建物賃貸借契約)途中解約不可。
※3年後、契約満了時に再契約
築年数
昭和56年(1981年)7月
お問い合わせ
TEL:0532-47-6119 (10時~17時)
テナントスペース2

145.4㎡(43.98坪)
約14m×9.8m
貸料: 月額 ¥350,000(税別)
施設内設備
- 内装仕様 床:ピータイル 壁:クロス
- 電気設備 電灯100A 動力150A 電力メーター設置
- 照明設備 蛍光灯照明器具設置
- 空調設備 冷暖房完備
- 給排水工事 応相談
- 電気ガス追加工事 応相談
有料設備
- 電気料金 各部屋個別電力メーターによる料金
- 共用の照明設備、及び空調設備、衛生設備に係る使用料金 (共益費)
- 電話回線 ・ インターネットは入居者の費用負担(要:配線引き込み工事が必要)
入居契約期間
- 賃貸借契約開始日より3年間(定期建物賃貸借契約)途中解約不可。
※3年後、契約満了時に再契約
築年数
昭和56年(1981年)7月
お問い合わせ
TEL:0532-47-6119 (10時~17時)
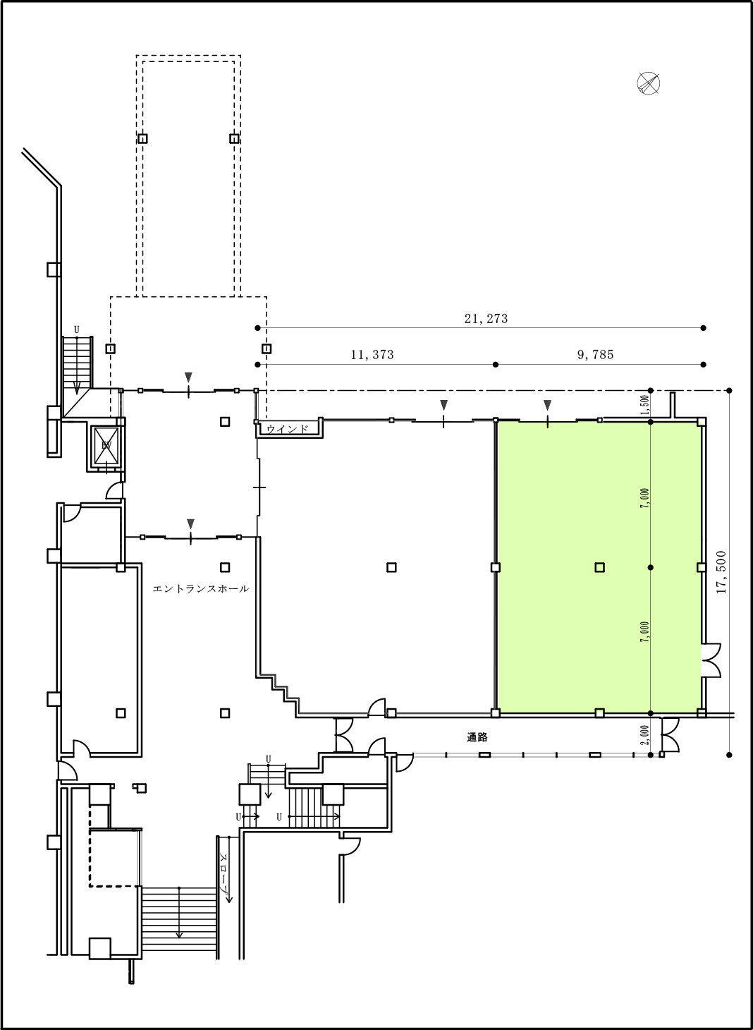
テナントスペース3

316.31㎡(95.68坪)
約14m×21.1m
貸料: 月額 ¥700,000(税別)
施設内設備
- 内装仕様 床:ピータイル 壁:クロス
- 電気設備 電灯100A 動力150A 電力メーター設置
- 照明設備 蛍光灯照明器具設置
- 空調設備 冷暖房完備
- 給排水工事 応相談
- 電気ガス追加工事 応相談
有料設備
- 電気料金 各部屋個別電力メーターによる料金
- 共用の照明設備、及び空調設備、衛生設備に係る使用料金 (共益費)
- 電話回線 ・ インターネットは入居者の費用負担(要:配線引き込み工事が必要)
入居契約期間
- 賃貸借契約開始日より3年間(定期建物賃貸借契約)途中解約不可。
※3年後、契約満了時に再契約
築年数
昭和56年(1981年)7月
お問い合わせ
TEL:0532-47-6119 (10時~17時)











ショッピングセンターや飲食店、映画館などにより構成された複合商業施設「ホリデイ スクエア」内にあります。
豊橋駅からもバスで約10分ほどの立地にあり大変便利です。
3タイプのオフィスの他、小スペースのオフィスもご用意しています。 お気軽にお問合せください。